ガレージは男の夢!?

男の秘密基地が出来るまで!?Part1

まずは荷物の引っ越しからです。

そろそろ建築確認も降りてくる時期となってきたので、いよいよ古いガレージの取り壊し準備です。このガレージを俺が使い始めたのは昭和63年、築2年で俺が使う事になったのですが、最初のうちは俺の遊び道具も少なかったので狭さは感じなっかったのですが、バイクが2台から3台になり、さらにはマウンテンバイクなど遊び道具も増える一方!、しかもこの手のガレージではセキュリティーも心配なので、立て直す事に。
ちなみにこのガレージの大きさは巾2.5m、奥行き5m、有効高さ1.9mの、いわゆる「100人乗ってもだいじょーぶ!」で有名なイナバ物置のガレージです。
2002年12月2日 全ての荷物の引っ越しが終わりました。
いよいよ5日から解体が始まります。

2002年12月2日


倉庫の片隅を間借りして


いざ引っ越しの段になり、荷物を整理していくのですが、出てくる出てくる懐かしい物のオンパレード!
でもそれらを全て取って置いたのではいくらスペースが増えると言っても限界があるので、いらない物はどんどん捨てていきます。

しかし引っ越し荷物をまとめてみると、こんなにも大量の荷物となったのでした。
よくあの小さなガレージに収まっていたなぁ〜(笑)
新しいガレージが出来上がる1月末まで、荷物は倉庫の片隅を借りて保管してもらいます。


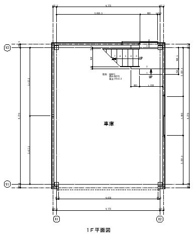
1階平面図
有効巾 4.6m
有効長 6.6m
有効高 2.45m

1Fはバイクなどのガレージとして使いますが、日常的に使うキャンプ用品などはスチール棚を使ってこちらに整理する予定です。
もちろん作業、整備スペースもここになるので、工具なども1Fに整理する予定。
  2階平面図
有効巾 4.6m
有効長 5.4m
有効高 2.0m

2Fは倉庫として使います。
日常的に使わない遊び道具はここにしまいます。あと昭和58年頃から買い始めたバイク雑誌などのストックが相当量有るので、これも専用の本棚を作成してここに整理する予定。
ほかにもリラックス出来るソファーや机などを持ち込むつもりなので、書籍を使った資料調べの時に便利になるでしょう.........



詳しい平面図を見たい方は
平面図.pdf


ガレージ正面から見た立面図ですが、2Fの壁に窓がないのは、この面の内側全面に本棚を作る為。1Fガレージのシャッターは軽量電動シャッター(リモコン付き)にして、外側に鍵穴は一切作りません(セキュリティーの為)。


敷地の外側に面している側の1Fには窓は作らず(これも進入防止の為)、敷地内側の東面の高い位置に窓を付けました。

詳しい立面図を見たい方は
立面図.pdf


つづく........


 
 
 





     
     

続きも見るぞ!

 

とりあえず戻る

解体作業が始まりました